Calme, résidentiel, bureau et 2 Garages à ROSIÈRES
LOCALISATION GÉOGRAPHIQUE
Adresse
:
Rue de la Procession 5, ROSIÈRES 1331
INFORMATIONS FINANCIERES
Prix
:
585.000 €
Revenu cadastral
:
2.595 €
Certificat energétique
PEB No.20260205007048
E spec
:
347 kWh/m².an
E totale
:
59.109 kWh/an
Emission CO2
:
85 Kg CO2/m².an

AUTRES INFORMATIONS
Année de construction
:
Non communiqué
CONFORT/EQUIPEMENTS
Chauffage
:
C.C. au mazout
Gaz
:
Non
Raccordement de l’eau
:
Oui
Ascenseur
:
Non
Cuisine
:
Équipée
Vitrage
:
Double
Type de vitrage
:
bois
REPARTITION
Superficie totale
:
258 m²
Superficie living
:
41.5 m²
Superficie terrain
:
1044 m²
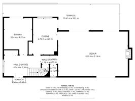
Description
Charmante villa d’une superficie totale de ± 258 m². Elle se compose de 4 chambres + bureau, agréable séjour de ± 41 m² avec feu ouvert, cuisine équipée, 2 salles d’eau, garage 2 voitures ± 42 m², grenier de rangement ± 45 m² (au sol), terrasse en pierre et jardin orienté Sud. L’ensemble sur un terrain de ± 10 ares 44 ca.
COUP D'OEIL PPR
Proche de la gare et du centre de Rixensart,
Quartier résidentiel recherché, calme et verdoyant,
Accès aisé vers les grands axes de communication, E-411, écoles, commerces.
DESCRIPTION
Sous-Sol: - Double garage avec portes manuelles et chaufferie ± 40 m²
(± 81 m²) - 2 Caves de ± 20,50 m² chacune
Rez-de-chée : - Hall d'entrée, vestiaire et wc séparé (lave-mains) ± 13,50 m²
(± 78,50 m²) - Séjour avec feu ouvert et accès terrasse ± 41,50 m²
- Cuisine équipée (cuisinière électrique, frigo, LV Smeg, évier Inox, hotte) avec accès à la terrasse ± 12 m²
- Bureau avec accès au balcon ± 11,50 m²
1er étage : - Hall de nuit avec placards intégrés ± 8 m²
(± 74 m²) - 3 chambres avec placards intégrés ± 13,50 m², ± 14 m² et ± 11,50 m²
- Chambre parentale avec salle de bain (bain, 2 lavabos) et placards encastrés ± 20 m²
- Salle de bain (bain, lavabo et placards) ± 6 m²
- Toilette séparée ± 1,50 m²
- Accès grenier de rangement ± 45 m² (au sol)
Abords : - Terrasse en pierre orientée Sud ± 30 m²
- 2 emplacements de parking extérieurs
ÉQUIPEMENT
Chauffage central au mazout (citerne de 5.000l), châssis double vitrage en bois, volets en bois, 10 panneaux photovoltaïques + Onduleur Growatt, compteur intelligent, reliée au égouts, alarme, prise RJ45, alarme, électricité non conforme, sol en carrelage (Tomettes), parquet et quick-step aux étages.
FRAIS D'ACQUISITION
NOTAIRE
Maître Wathelet (Wavre)
RENSEIGNEMENTS CADASTRAUX
Division : 3e Section : B N° 101H
Revenu Cadastral Net : 2.595,00 €
Précompte Immobilier : ± 2.548,32 €
SUPERFICIES
Utile : ± 258 m² (hors grenier)
Au sol : ± 96 m²
Habitable : ± 192 m²
Totale : ± 10 ares 44 ca
DIVERS
Année de construction : ± 1980
LA PARTIE ACQUEREUR GARDE LE LIBRE CHOIX DU NOTAIRE INTERVENANT
Descriptif informatif - Non contractuel - A titre indicatif - Sans garantie et sous toutes réserves

































