Campagne, rue calme, possibilité aménager appartement à CHAUMONT-GISTOUX
LOCALISATION GÉOGRAPHIQUE
Adresse
:
Rue Florémond 65, CHAUMONT-GISTOUX 1325
INFORMATIONS FINANCIERES
Prix
:
435.000 €
Revenu cadastral
:
555 €
Certificat energétique
PEB No.20241226008881
E spec
:
624 kWh/m².an
E totale
:
97.681 kWh/an

AUTRES INFORMATIONS
Disponible
:
Libre d'occupation
Année de construction
:
1850
CONFORT/EQUIPEMENTS
Chauffage
:
C.C. au mazout
Gaz
:
Non
Raccordement de l’eau
:
Oui
Confort intérieur
:
Buanderie
Ascenseur
:
Non
Cuisine
:
Semi-équipée
Vitrage
:
Double
Type de vitrage
:
bois
REPARTITION
Superficie totale
:
285 m²
Superficie living
:
24 m²
Superficie terrain
:
2731 m²
Description
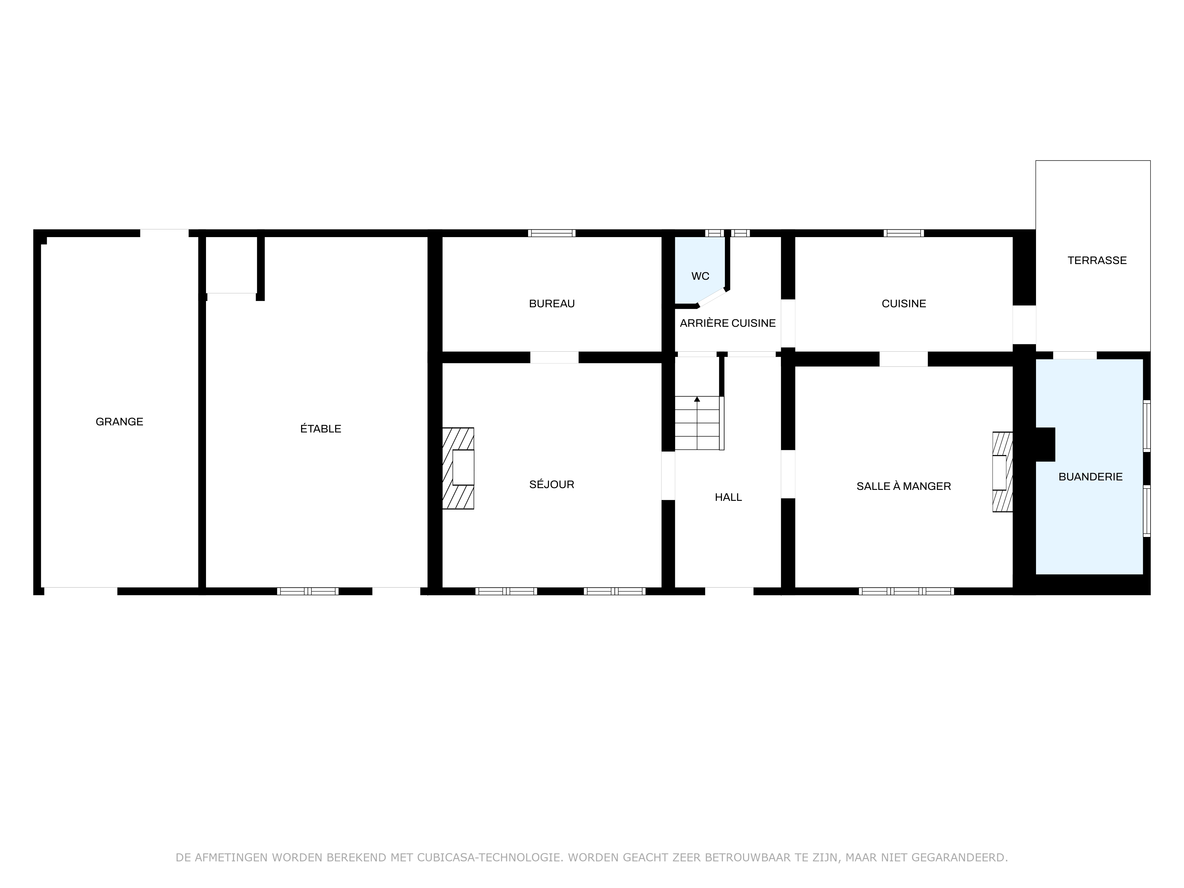
FERMETTE de charme de ± 285 m² utiles sur un terrain de ± 27 ares. Située dans une rue résidentielle calme à quelques minutes du centre de Chaumont-Gistoux. Composée de 2 chambres, séjour de ± 24 m² avec poêle à bois, salle à manger, cuisine équipée, buanderie, bureau, grenier aménageable de ± 34 m², 2 étables dont une aménage en garage.
COUP D'OEIL PPR :
Possibilité d’aménager un appartement indépendant dans les étables
Rue résidentielle calme dans un cadre champêtre
Proximité immédiate des axes de communications (E411; chée de Huy,…)
DESCRIPTION
Sous-Sol : - Caves ± 34 m²
Rez-de-Chaussée :
- Hall d’entrée ±12 m²
- Hall secondaire + w.c et accès cave ± 6 m²
- Salle à manger ± 23 m²
- Cuisine ± 12,5 m²
- Séjour ± 24 m²
- Bureau ± 10,5 m²
- Buanderie/annexe de ± 10 m²
1er Étage : - Hall de nuit mansardé
- Chambre ± 11 m²
- Chambre ± 19 m²
- Salle de bain avec w.c ± 13 m²
- Grenier aménageable ± 34 m²
Abords : - Étable de ± 33 m² avec arrivée d'eau (toilette) et électricité
- Grange/Garage avec entrée carrossable ± 26 m²
EQUIPEMENT :
Chauffage central mazout avec citerne enterrée de ± 3.000 litres , double vitrage bois, électricité bi-horaire, revêtement de sol en pierre, carrelage et moquette.
FRAIS D'ACQUISITION : Calculez ici vos frais d'acquisition
NOTAIRE : Me Jamar. (Chaumont-Gistoux)
RENSEIGNEMENTS CADASTRAUX :
Matrice n° 25018
Division : 1ère Section : D N° 310c
Revenu Cadastral Net : 555 €
Précompte Immobilier : ± 520,88 €
SUPERFICIES :
Habitable : ± 150 m²
Utile : ± 285 m²
Terrain : ± 27 ares 31 ca
DIVERS :
Année Construction : avant 1850
Installation électrique non conforme
LABEL ENERGETIQUE :
E spec : 624 kWh/m²/an
E totale : 97.681 kWh/an
PEB No. : 20241226008881
































